fbpx

大松建設株式会社

リノベーション工事請負価格 (標準仕様 税込)

¥-- 坪単価 ¥-- (施工延床)

延床面積 135.13㎡(40.9坪)  施工延床面積 56.30㎡(17.1坪)

※地域・建築条件によって価格が異なることがあります。
※掲載動画はCGのため実物と異なることがあります。

その他発生する可能性のある費用についてはこちら
『下記、表示価格からの変更等に伴う工事請負価格の変動について』
■耐火仕様・地域別仕様
建築地における法令基準や地域の気候に合わせた住宅性能仕様変更により
工事費が変動する場合があります。
防火耐火基準に仕様変更・寒冷地積雪による仕様変更
耐震性能・断熱性能・換気性能等による仕様変更
■特殊地域による費用の変動
 離島運搬費・遠方運搬費・狭小地小運搬費・高所運搬費・等による費用変動
■仮設工事
本体基本価格に含まれています(特殊ケースを除く)
■足場工事
本体基本価格に含まれています(特殊ケースを除く)

『下記、表示価格に含まれない費用となります』
■内装装飾工事
 カーテン・ペンダントライト・家具・雑貨・装飾品等
■エクステリア工事
 車庫・カーポート・門扉・外柵・敷石・等のエクステリアの工事費用
■ライフラインに関する費用
上下水道引込・電気引込工事・都市ガス引込工事・浄化槽設置工事費用
■不動産購入費
 不動産購入費・不動産取得税・印紙代
■土地、敷地関する費用
地盤調査費・地盤改良費・擁壁工事費・地盤保証費
(既存建物がある場合)建物調査費用・解体工事費・残土処分費
■設計図書作成料
 仕様書・意匠図・構造図等の作成費であり工事契約前に別途発生する費用
■建築確認申請料
行政に対して建築物の審査を受けるための申請費用
建築確認申請料・中間検査申請料・完了検査申請料等
■住宅性能表示制度
設計性能評価・建設性能評価・長期優良住宅認定を取得される場合の
申請業務費用・申請手数料
■フラット35適合証明
フラット35を受ける場合は審査手続きを受けるための費用
■各種保険
火災保険・地震保険・住宅瑕疵担保責任保険
■市街化調整区域での申請料
■境界杭・測量等
■建物滅失登記申請料
■建物表示登記申請料
■建物保存登記申請料
■借入事務手数料
■抵当権設定登記費用
■生保団信特約料(団体信用生命保険特約制度)
■借入保証料
■完成保証料(完成保証登録料)
■地鎮祭・上棟式・引越し費用
■その他
  • 家族が成長できる自然素材の家

    「無垢材」や「自然素材」をふんだんに使用した、家族の健康と成長を育む住まい。子供部屋やガレージなど、家族それぞれの「好き」を詰め込みました。

  • 炎を囲む開放的な薪ストーブのあるリビング

    家族の団らんの中心となる薪ストーブのあるリビング。自然光と炎のゆらめきに包まれ、心地よさと非日常感を同時に味わえる贅沢な空間です。

  • 成長に合わせて変化。左右対称の子供部屋と勉強スペース

    将来のライフスタイルに合わせて間取りを変更できる左右対称の子供部屋。

  • 共有の勉強スペースやを設け、効率的かつ自立を促す空間設計です。

  • 三角ドアの子供部屋

  • 愛車と過ごす時間。趣味を極める低い天井のガレージ

    低い天井が特徴のガレージ。愛車や道具のメンテナンス空間としてだけでなく、秘密基地のような「こもり感」も生み出します。

  • 外観

    一年中快適な暮らしを。高断熱・省エネ性能の家
    高い断熱性能と省エネ性を兼ね備えた住まい。冬は暖かく、夏は涼しい快適な室内環境を実現し、家計にも環境にも優しい暮らしを提供します。

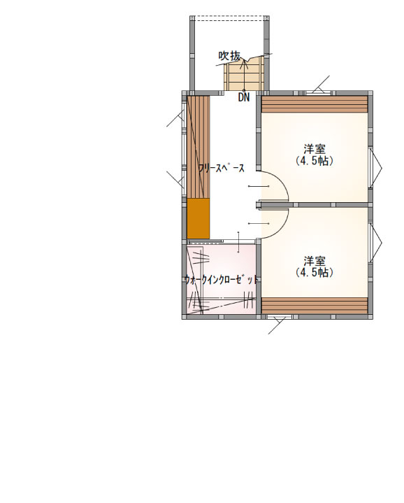
  • 1F

  • 2F

このモデルハウスをつくった人

  • 関 貢民子()

リノベーション工事請負価格 (標準仕様 税込)

¥--(更新: 2025/10/20)

坪単価:¥--(申請施工延床面積)

床面積

  • 1F床面積
    108.85 ㎡
  • 2F床面積
    26.28 ㎡
  • 延床面積
    135.13 ㎡(40.9坪)

施工面積

  • 1F施工面積
    28.15 ㎡
  • 2F施工面積
    28.15 ㎡
  • 施工延床面積
    56.30 ㎡(17.1坪)

仕様

  • 工法
    在来軸組
  • 主要構造材
    土台・柱:桧
  • 断熱仕様
    屋根断熱 壁充填+付加断熱 床断熱
  • 通気仕様
    外壁通気工法
  • 換気仕様
    1種換気
  • 基礎
    べた基礎
  • 外壁
    1F:サイディングケイミュー16mm、2F:県産杉赤身板、既存部ガルバリウム鋼板
  • 屋根
    ガルバリウム鋼板ハイロック葺き
  • サッシ
    アルミ樹脂複合サッシ LIXIL TW トリプルガラス
  • 玄関ドア
    既存のまま
  • 室内ドア
    子供部屋:屋久島地杉
  • 室内床
    屋久島地杉フローリング
  • 階段
    無垢板
  • キッチン
    既存のまま
  • 浴室
    既存のまま
  • 洗面室
    既存のまま
  • トイレ
    LIXIL サティスS

※『表示請負金額』 に対する仕様において、上記記載項以外の項目については直接お問い合わせください。

※『表示請負金額』に含まれないもの及び価格変動に影響するものについてはコチラをご確認ください。

この工務店 / 設計事務所の詳細は下記リンクよりご覧いただけます。