fbpx

永本建設株式会社

工事請負価格 (標準仕様 税込)

¥44,220,000 坪単価 ¥1,100,000 (施工延床)

延床面積 113.17㎡(34.3坪)  施工延床面積 132.51㎡(40.2坪)

※地域・建築条件によって価格が異なることがあります。
※掲載動画はCGのため実物と異なることがあります。

その他発生する可能性のある費用についてはこちら
『下記、表示価格からの変更等に伴う工事請負価格の変動について』
■耐火仕様・地域別仕様
建築地における法令基準や地域の気候に合わせた住宅性能仕様変更により
工事費が変動する場合があります。
防火耐火基準に仕様変更・寒冷地積雪による仕様変更
耐震性能・断熱性能・換気性能等による仕様変更
■特殊地域による費用の変動
 離島運搬費・遠方運搬費・狭小地小運搬費・高所運搬費・等による費用変動
■仮設工事
本体基本価格に含まれています(特殊ケースを除く)
■足場工事
本体基本価格に含まれています(特殊ケースを除く)

『下記、表示価格に含まれない費用となります』
■内装装飾工事
 カーテン・ペンダントライト・家具・雑貨・装飾品等
■エクステリア工事
 車庫・カーポート・門扉・外柵・敷石・等のエクステリアの工事費用
■ライフラインに関する費用
上下水道引込・電気引込工事・都市ガス引込工事・浄化槽設置工事費用
■不動産購入費
 不動産購入費・不動産取得税・印紙代
■土地、敷地関する費用
地盤調査費・地盤改良費・擁壁工事費・地盤保証費
(既存建物がある場合)建物調査費用・解体工事費・残土処分費





■住宅性能表示制度
設計性能評価・建設性能評価・長期優良住宅認定を取得される場合の
申請業務費用・申請手数料
■フラット35適合証明
フラット35を受ける場合は審査手続きを受けるための費用
■各種保険
火災保険・地震保険・住宅瑕疵担保責任保険

■境界杭・測量等
■建物滅失登記申請料
■建物表示登記申請料
■建物保存登記申請料
■借入事務手数料
■抵当権設定登記費用
■生保団信特約料(団体信用生命保険特約制度)
■借入保証料
■完成保証料(完成保証登録料)
■地鎮祭・上棟式・引越し費用
■その他

この工務店 / 設計事務所の
詳細・お問合わせはこちら

  • 木の家

    広島の木を使った、温もりあふれる心地よい住まい。
    木の手触りや美しい木目が、住む人の心を癒してくれます。
    玄関入って真正面から庭が見え、LDKや寝室など、様々な箇所から庭を望むことができる開放的な間取りも魅力です。

  • 快適な住環境

    自然のエネルギーを活かした、パッシブ設計。
    高い断熱性能により、夏は涼しく冬は暖かい、快適な室温環境を保ちます。
    自然と調和しながら、無理のない省エネな暮らしを実現。

  • 子育て世代に優しい

    キッチン・パントリー・洗面室・脱衣室が一直線になっているスムーズな家事動線。
    1階と2階が吹き抜けで繋がり、家のどこにいても家族の気配を感じることができます。

  • 外観

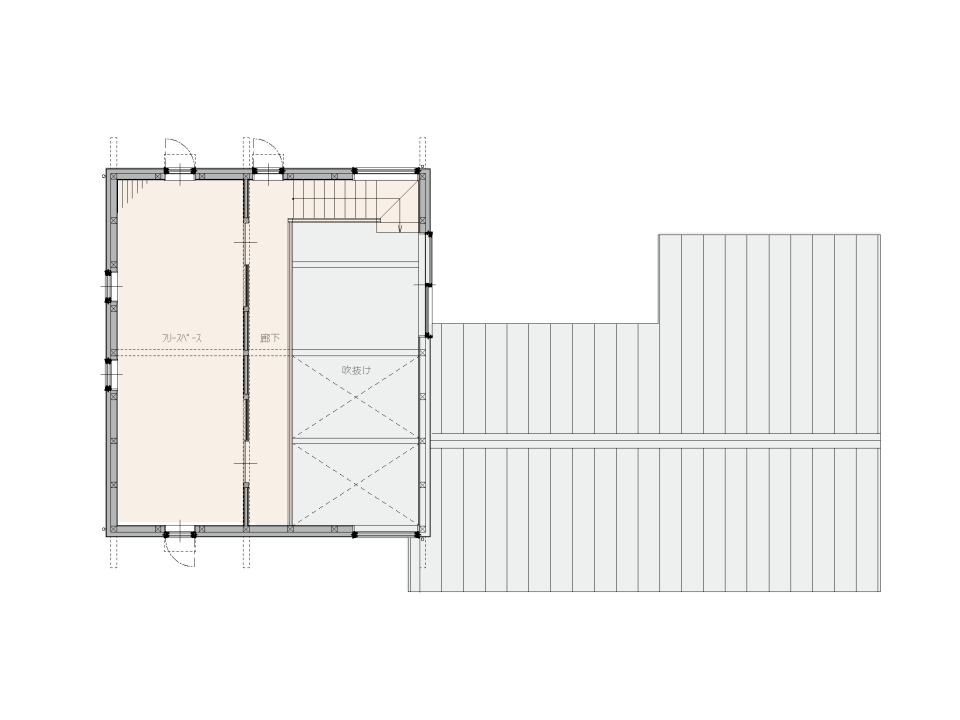
  • 1F

  • 2F

このモデルハウスをつくった人

  • 鳥越ひなた()

工事請負価格 (標準仕様 税込)

¥44,220,000(更新: 2025年12月21日)

坪単価:¥1,100,000(申請施工延床面積)

床面積

  • 1階 床面積
    83.96 ㎡
  • 2階 床面積
    29.21 ㎡
  • 延床面積
    113.17 ㎡(34.3坪)

施工面積

  • 1階 施工面積
    86.14 ㎡
  • 2階 施工面積
    46.37 ㎡
  • 施工延床面積
    132.51 ㎡(40.2坪)

仕様

  • 工法
    木造在来軸組工法
  • 耐震等級
    3等級
  • 断熱等級
    5等級
  • 主要構造材
    無垢杉材
  • 保証制度
    20年 地盤保証・免震保証 10年瑕疵保険
  • 断熱仕様
    屋根断熱 外断熱 基礎断熱
  • 通気仕様
    外壁通気工法
  • 換気仕様
    3種換気
  • 基礎
    布基礎
  • 外壁
    そとん壁+焼杉
  • 屋根
    ガルバリウム鋼板縦はぜ葺き
  • サッシ
    樹脂サッシ YKK/APW330
  • 玄関ドア
    木製片引き戸 ユダ木工
  • 室内ドア
    造作建具 杉
  • 室内床
    無垢杉板
  • 階段
    桧木製階段
  • キッチン
    造作キッチン
  • 浴室
    LIXIL リデア1616
  • 洗面室
    造作洗面台
  • トイレ
    LIXIL ベーシアシャワートイレ
  • その他
    浄化槽

※『表示請負金額』 に対する仕様において、上記記載項以外の項目については直接お問い合わせください。

※『表示請負金額』に含まれないもの及び価格変動に影響するものについてはコチラをご確認ください。

この工務店 / 設計事務所の詳細は下記リンクよりご覧いただけます。