fbpx

株式会社竹内工務店

※本CGモデルはCGオンラインスクール受講生の制作演習作品です。
実在住宅とは異なります。

360度バーチャルビュー

  • 外観

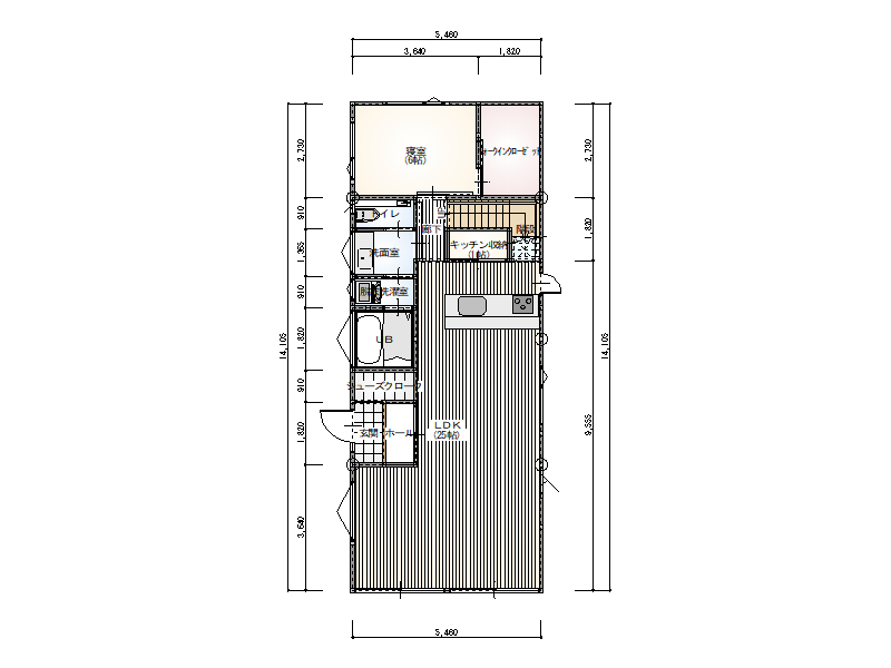
  • 1F

  • 2F

このモデルハウスをつくった人

  • 田中英子 ()

床面積

  • 延床面積
    ㎡(坪)

施工面積

  • 施工延床面積
    ㎡(坪)

仕様

※本CGモデルは制作演習用に作成されたものであり、実際の建築仕様・性能等を保証するものではありません。