fbpx

田村建設株式会社

工事請負価格 (標準仕様 税込)

¥35,000,000 坪単価 ¥1,008,646 (施工延床)

延床面積 102.36㎡(31坪)  施工延床面積 114.60㎡(34.7坪)

※地域・建築条件によって価格が異なることがあります。
※掲載動画はCGのため実物と異なることがあります。

その他発生する可能性のある費用についてはこちら
■耐火仕様・地域別仕様
建築地における法令基準や地域の気候に合わせた住宅性能仕様変更により
工事費が変動する場合があります。
防火耐火基準に仕様変更・寒冷地積雪による仕様変更
耐震性能・断熱性能・換気性能等による仕様変更
■特殊地域による費用の変動
 離島運搬費・遠方運搬費・狭小地小運搬費・高所運搬費・等による費用変動
■仮設工事
本体基本価格に含まれています(特殊ケースを除く)
■足場工事
本体基本価格に含まれています(特殊ケースを除く)

『下記、表示価格に含まれない費用となります』
■内装装飾工事
 カーテン・ペンダントライト・家具・雑貨・装飾品等
■エクステリア工事
 車庫・カーポート・門扉・外柵・敷石・等のエクステリアの工事費用
■ライフラインに関する費用
上下水道引込・電気引込工事・都市ガス引込工事・浄化槽設置工事費用
■不動産購入費
 不動産購入費・不動産取得税・印紙代
■土地、敷地関する費用
地盤調査費・地盤改良費・擁壁工事費・地盤保証費
(既存建物がある場合)建物調査費用・解体工事費・残土処分費
■設計図書作成料
 仕様書・意匠図・構造図等の作成費であり工事契約前に別途発生する費用
■建築確認申請料
行政に対して建築物の審査を受けるための申請費用
建築確認申請料・中間検査申請料・完了検査申請料等
■住宅性能表示制度
設計性能評価・建設性能評価・長期優良住宅認定を取得される場合の
申請業務費用・申請手数料
■フラット35適合証明
フラット35を受ける場合は審査手続きを受けるための費用
■各種保険
火災保険・地震保険・住宅瑕疵担保責任保険
■市街化調整区域での申請料
■境界杭・測量等
■建物滅失登記申請料
■建物表示登記申請料
■建物保存登記申請料
■借入事務手数料
■抵当権設定登記費用
■生保団信特約料(団体信用生命保険特約制度)
■借入保証料
■完成保証料(完成保証登録料)
■地鎮祭・上棟式・引越し費用
■その他
 OMX設備(全館空調+給湯+太陽光発電設備)、蓄電池

この工務店 / 設計事務所の
詳細・お問合わせはこちら

  • 緑が映えるシンプルな外観

    黒い外壁に緑が映えるシンプルな佇まいが街並みに自然と溶け込みます。
    限られた敷地ながらも、ゆとりある駐車スペースを最大3台分確保。
    家族がほどよい距離を保ちながら、楽しく過ごせる居心地のいい住まいです。

  • 現代の暮らしに寄り添う「田の字型」の間取り

    日本の伝統的な「田の字型」プランを現代の暮らしに合わせた間取り設計。
    畳をラウンジピットのように一段掘り下げ、空間にメリハリと広がりをもたらします。

  • こだわりの造作家具で彩るダイニング

    やわらかな光に包まれたダイニング。
    空間に合わせてデザインされた温もりのある造作家具が、楽しい食卓の時間を演出します。

  • 家族と繋がる対面キッチン

    料理をしながらでも家族との会話や子供の様子を見守れる対面式のL型カウンターキッチン。
    奥には大容量の食品庫も備え、広々としたキッチン空間を叶えます。

  • 開放感あふれるウッドデッキ

    全開口可能な大きな窓を開けると、光溢れるウッドデッキと緑豊かな庭へと繋がります。
    四季の移ろいを身近に感じながら、のびやかな時間を満喫できるくつろぎの空間です。

  • 外観

  • 1F平面図

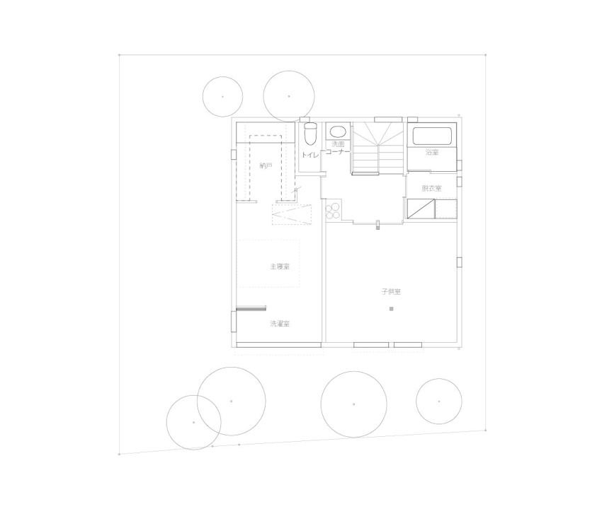
  • 2F平面図

工事請負価格 (標準仕様 税込)

¥35,000,000(更新: 2025年9月29日)

坪単価:¥1,008,646(申請施工延床面積)

床面積

  • 1F床面積
    45.06 ㎡
  • 2F床面積
    57.30 ㎡
  • 延床面積
    102.36 ㎡(31坪)

施工面積

  • 1F施工面積
    57.30 ㎡
  • 2F施工面積
    57.30 ㎡
  • 施工延床面積
    114.60 ㎡(34.7坪)

仕様

  • 工法
    在来軸組 パネル工法
  • 耐震等級
    3等級
  • 断熱等級
    6等級
  • 主要構造材
    土台:桧/柱・梁など:杉・桧・米松
  • 保証制度
    10年
  • 断熱仕様
    屋根断熱、壁断熱、基礎断熱
  • 通気仕様
    外壁通気工法
  • 換気仕様
    1種換気
  • 基礎
    べた基礎
  • 外壁
    モルタル塗り ジョリパット吹付仕上
  • 屋根
    ガルバリウム鋼板
  • サッシ
    アルミ樹脂複合サッシ LIXIL サーモスX
  • 玄関ドア
    木製ドア ユダ木工 TH741-1023S
  • 室内ドア
    造作 シナフラッシュ戸
  • 室内床
    杉無垢材
  • 階段
    杉集成材
  • キッチン
    造作キッチン
  • 浴室
    LIXIL ハーフユニットバス:桧板張り・タイル
  • 洗面室
    造作洗面台
  • トイレ
    Panasonic アラウーノZ

※『表示請負金額』 に対する仕様において、上記記載項以外の項目については直接お問い合わせください。

※『表示請負金額』に含まれないもの及び価格変動に影響するものについてはコチラをご確認ください。

この工務店 / 設計事務所の詳細は下記リンクよりご覧いただけます。