fbpx

田村建設株式会社

工事請負価格 (標準仕様 税込)

¥45,000,000 坪単価 ¥878,906 (施工延床)

延床面積 106.67㎡(32.3坪)  施工延床面積 169.02㎡(51.2坪)

※地域・建築条件によって価格が異なることがあります。
※掲載動画はCGのため実物と異なることがあります。

その他発生する可能性のある費用についてはこちら
■耐火仕様・地域別仕様
建築地における法令基準や地域の気候に合わせた住宅性能仕様変更により
工事費が変動する場合があります。
防火耐火基準に仕様変更・寒冷地積雪による仕様変更
耐震性能・断熱性能・換気性能等による仕様変更
■特殊地域による費用の変動
 離島運搬費・遠方運搬費・狭小地小運搬費・高所運搬費・等による費用変動
■仮設工事
本体基本価格に含まれています(特殊ケースを除く)
■足場工事
本体基本価格に含まれています(特殊ケースを除く)

『下記、表示価格に含まれない費用となります』
■内装装飾工事
 カーテン・ペンダントライト・家具・雑貨・装飾品等
■エクステリア工事
 車庫・カーポート・門扉・外柵・敷石・等のエクステリアの工事費用
■ライフラインに関する費用
上下水道引込・電気引込工事・都市ガス引込工事・浄化槽設置工事費用
■不動産購入費
 不動産購入費・不動産取得税・印紙代
■土地、敷地関する費用
地盤調査費・地盤改良費・擁壁工事費・地盤保証費
(既存建物がある場合)建物調査費用・解体工事費・残土処分費
■設計図書作成料
 仕様書・意匠図・構造図等の作成費であり工事契約前に別途発生する費用
■建築確認申請料
行政に対して建築物の審査を受けるための申請費用
建築確認申請料・中間検査申請料・完了検査申請料等
■住宅性能表示制度
設計性能評価・建設性能評価・長期優良住宅認定を取得される場合の
申請業務費用・申請手数料
■フラット35適合証明
フラット35を受ける場合は審査手続きを受けるための費用
■各種保険
火災保険・地震保険・住宅瑕疵担保責任保険
■市街化調整区域での申請料
■境界杭・測量等
■建物滅失登記申請料
■建物表示登記申請料
■建物保存登記申請料
■借入事務手数料
■抵当権設定登記費用
■生保団信特約料(団体信用生命保険特約制度)
■借入保証料
■完成保証料(完成保証登録料)
■地鎮祭・上棟式・引越し費用
■その他
 全館空調設備(パッシブエアコン)

この工務店 / 設計事務所の
詳細・お問合わせはこちら

  • 経年変化を楽しむ、趣のある外観

    深い軒が醸し出す、どこか懐かしい佇まいが印象的な外観。
    外壁には耐久性と耐候性、耐火性に優れた焼杉を採用し、時と共に深まる風合いを楽しめます。
    車2台分のインナーガレージは、アウトリビングとしても使用できるオープンな空間に仕上げました。

  • 勾配天井の開放的な2階リビング

    勾配天井が広がりと開放感をもたらす2階リビング。
    仕切りを設けず、家具の配置次第で表情を変える、柔軟性のある空間設計です。

  • 中庭を望む、心地よい寝室

    中庭の緑を望む、落ち着きのある主寝室。
    隣接する多目的クローゼットには、布団や衣類をまとめて収納でき、心地よさと機能性を両立しました。

  • プライベートを確保した特別なバルコニー

    ダイニングから続く半戸外バルコニーは、隣家の視線を気にせずプライベートな時間を満喫できる特別な空間。
    屋根の開口からは冬の暖かな日差しが室内に降り注ぎ、心地よい風が通り抜け、物干しスペースとしても活躍します。

  • 清々しい光が差し込む、やさしい空間。

    木のぬくもりと明るい光が広がるキッチン。
    自然体で過ごせる、心地よい日常をここから。

  • 外と内がつながる、開放のリビング。

    大きな窓の向こうに広がるデッキスペース。自然光と風を取り込み、ゆとりある暮らしをデザインしました。

  • 光と緑に包まれる、くつろぎの時間。

    焼杉の外壁が描く陰影と、緑が映える穏やかな空間。四季の移ろいを感じながら、心地よく暮らす住まいです。

  • 外観

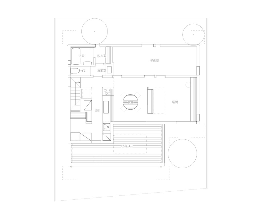
  • 1F平面図

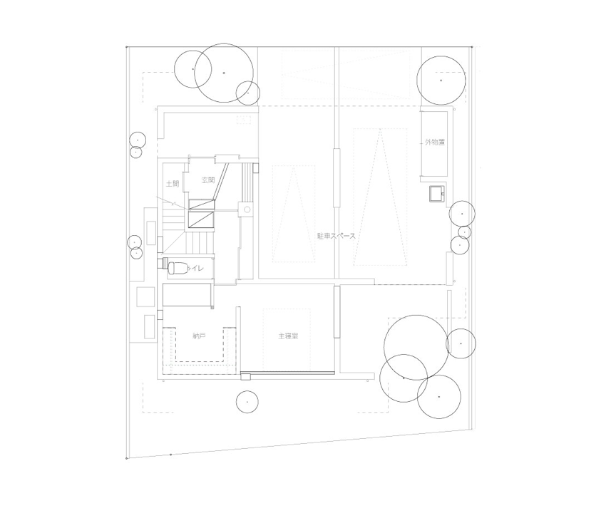
  • 2F平面図

工事請負価格 (標準仕様 税込)

¥45,000,000(更新: 2025年10月2日)

坪単価:¥878,906(申請施工延床面積)

床面積

  • 1F床面積
    37.11 ㎡
  • 2F床面積
    69.56 ㎡
  • 延床面積
    106.67 ㎡(32.3坪)

施工面積

  • 1F施工面積
    90.48 ㎡
  • 2F施工面積
    78.54 ㎡
  • 施工延床面積
    169.02 ㎡(51.2坪)

仕様

  • 工法
    在来軸組 パネル工法
  • 耐震等級
    3等級
  • 断熱等級
    6等級
  • 主要構造材
    土台・柱・桁・梁など:赤松集成
  • 保証制度
    10年
  • 断熱仕様
    屋根断熱、壁断熱、基礎断熱
  • 通気仕様
    外壁通気工法
  • 換気仕様
    3種換気
  • 基礎
    べた基礎
  • 外壁
    焼杉 板張り押縁止+モルタル塗り ジョリパット仕上
  • 屋根
    ガルバリウム鋼板
  • サッシ
    アルミ樹脂複合サッシ LIXIL サーモスX
  • 玄関ドア
    木製ドア ユダ木工 IW922-AH1821P
  • 室内ドア
    造作
  • 室内床
    ナラ無垢材
  • 階段
    ナラ集成材
  • キッチン
    造作キッチン
  • 浴室
    タカラスタンダード システムバス リラクシア
  • 洗面室
    サンワカンパニ― プレーンV
  • トイレ
    Panasonic アラウーノZ

※『表示請負金額』 に対する仕様において、上記記載項以外の項目については直接お問い合わせください。

※『表示請負金額』に含まれないもの及び価格変動に影響するものについてはコチラをご確認ください。

この工務店 / 設計事務所の詳細は下記リンクよりご覧いただけます。