fbpx

株式会社HORI建築

工事請負価格 (標準仕様 税込)

¥89,000,000 坪単価 ¥919,508 (施工延床)

延床面積 285.00㎡(86.4坪)  施工延床面積 319.97㎡(97坪)

※地域・建築条件によって価格が異なることがあります。
※掲載動画はCGのため実物と異なることがあります。

その他発生する可能性のある費用についてはこちら
『下記、表示価格からの変更等に伴う工事請負価格の変動について』
■耐火仕様・地域別仕様
建築地における法令基準や地域の気候に合わせた住宅性能仕様変更により
工事費が変動する場合があります。
防火耐火基準に仕様変更・寒冷地積雪による仕様変更
耐震性能・断熱性能・換気性能等による仕様変更
■特殊地域による費用の変動
 離島運搬費・遠方運搬費・狭小地小運搬費・高所運搬費・等による費用変動
■仮設工事
本体基本価格に含まれています(特殊ケースを除く)
■足場工事
本体基本価格に含まれています(特殊ケースを除く)

『下記、表示価格に含まれない費用となります』
■内装装飾工事
 カーテン・ペンダントライト・家具・雑貨・装飾品等
■エクステリア工事
 門扉・外柵・敷石・等のエクステリアの工事費用
■ライフラインに関する費用
上下水道引込・電気引込工事・都市ガス引込工事・浄化槽設置工事費用
■不動産購入費
 不動産購入費・不動産取得税・印紙代
■土地、敷地関する費用
地盤調査費・地盤改良費・擁壁工事費・地盤保証費
(既存建物がある場合)建物調査費用・解体工事費・残土処分費
■設計図書作成料
 仕様書・意匠図・構造図等の作成費であり工事契約前に別途発生する費用
■建築確認申請料
行政に対して建築物の審査を受けるための申請費用
建築確認申請料・中間検査申請料・完了検査申請料等
■住宅性能表示制度
設計性能評価・建設性能評価・長期優良住宅認定を取得される場合の
申請業務費用・申請手数料
■フラット35適合証明
フラット35を受ける場合は審査手続きを受けるための費用
■各種保険
火災保険・地震保険・住宅瑕疵担保責任保険
■市街化調整区域での申請料
■境界杭・測量等
■建物滅失登記申請料
■建物表示登記申請料
■建物保存登記申請料
■借入事務手数料
■抵当権設定登記費用
■生保団信特約料(団体信用生命保険特約制度)
■借入保証料
■完成保証料(完成保証登録料)
■地鎮祭・上棟式・引越し費用
■その他

この工務店 / 設計事務所の
詳細・お問合わせはこちら

  • 自然とともに暮らす平屋の家

    重厚感ある塗り壁と木が織りなす、美しい和モダンの平屋。
    住まいの中心に中庭を設けることで、家にいながら自然を感じられる、静かで豊かな暮らしを実現しました。

  • 中庭を望む開放的なリビング

    大きな窓と吹抜けのある、上品で開放的なリビング。
    大開口を開くと、周囲をガラス窓で囲った中庭がまるで絵画のように楽しめます。

  • 心地よい中庭で四季の移ろいを愉しむ

    光と風を取り込むプライベートな中庭。
    季節の移ろいを感じながら、穏やかなひとときを過ごせます。

  • 洗練された和室

    木目と畳が美しい、洗練された和室。
    凛とした佇まいとぬくもりが漂う落ち着いた空間です。

  • 暮らしに寄り添うフリースペース

    吹き抜けに面したフリースペースは、家族のライフスタイルに合わせて多目的に活用できる空間。
    家族の気配を感じながらも、心地よい距離感を保ちます。

  • 外観

  • 1F

  • 2F

工事請負価格 (標準仕様 税込)

¥89,000,000(更新: )

坪単価:¥919,508(申請施工延床面積)

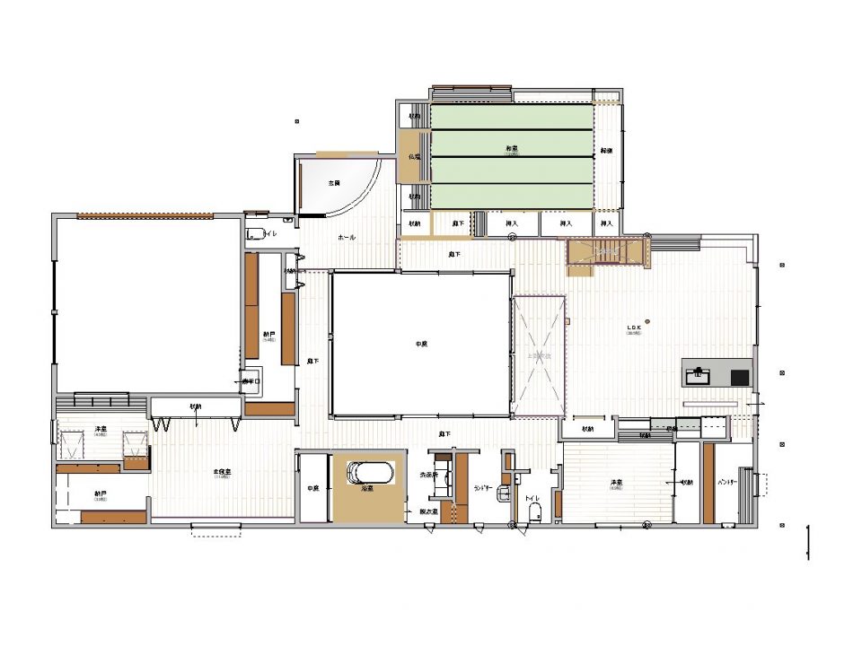
床面積

  • 1F床面積
    248.49 ㎡
  • 2F床面積
    36.51 ㎡
  • 延床面積
    285.00 ㎡(86.4坪)

施工面積

  • 1F施工面積
    275.68 ㎡
  • 2F施工面積
    44.29 ㎡
  • 施工延床面積
    319.97 ㎡(97坪)

仕様

  • 工法
    在来工法
  • 耐震等級
    3等級相当
  • 断熱等級
    6等級相当
  • 主要構造材
    土台・1F柱:ヒノキ、2F柱・横架材:杉
  • 保証制度
    10年住宅瑕疵保証
  • 断熱仕様
    屋根断熱 壁充填断熱+外張り断熱 基礎断熱
  • 通気仕様
    外壁通気工法
  • 換気仕様
    3種換気
  • 基礎
    ベタ基礎
  • 外壁
    高千穂シラス スーパー白洲そとん壁W
  • 屋根
    ガルバリウム鋼板横葺き
  • サッシ
    樹脂サッシ YKKAP APW330
  • 玄関ドア
    オリジナル木製ドア
  • 室内ドア
    オリジナル木製建具、WOODONE ピノアース
  • 室内床
    無垢ワイルドヒッコリーフローリング、無垢パインフローリング
  • 階段
    オリジナルアイアン階段
  • キッチン
    WOODONE スイージー
  • 浴室
    オリジナル浴室
  • 洗面室
    TOTO エスクアLS
  • トイレ
    TOTO ネオレスト
  • ペレットストーブ
    山本製作所 ほのか燦

※『表示請負金額』 に対する仕様において、上記記載項以外の項目については直接お問い合わせください。

※『表示請負金額』に含まれないもの及び価格変動に影響するものについてはコチラをご確認ください。

この工務店 / 設計事務所の詳細は下記リンクよりご覧いただけます。