fbpx

株式会社朋建

工事請負価格 (標準仕様 税込)

¥33,000,000 坪単価 ¥818,859 (施工延床)

延床面積 118.41㎡(35.9坪)  施工延床面積 132.90㎡(40.3坪)

※地域・建築条件によって価格が異なることがあります。
※掲載動画はCGのため実物と異なることがあります。

その他発生する可能性のある費用についてはこちら
『下記、表示価格からの変更等に伴う工事請負価格の変動について』
■耐火仕様・地域別仕様
建築地における法令基準や地域の気候に合わせた住宅性能仕様変更により
工事費が変動する場合があります。
防火耐火基準に仕様変更・寒冷地積雪による仕様変更
耐震性能・断熱性能・換気性能等による仕様変更
■特殊地域による費用の変動
 離島運搬費・遠方運搬費・狭小地小運搬費・高所運搬費・等による費用変動
■仮設工事
本体基本価格に含まれています(特殊ケースを除く)
■足場工事
本体基本価格に含まれています(特殊ケースを除く)

『下記、表示価格に含まれない費用となります』
■内装装飾工事
 カーテン・ペンダントライト・家具・雑貨・装飾品等
■エクステリア工事
 車庫・カーポート・門扉・外柵・敷石・等のエクステリアの工事費用
■ライフラインに関する費用
上下水道引込・電気引込工事・都市ガス引込工事・浄化槽設置工事費用
■不動産購入費
 不動産購入費・不動産取得税・印紙代
■土地、敷地関する費用
地盤調査費・地盤改良費・擁壁工事費・地盤保証費
(既存建物がある場合)建物調査費用・解体工事費・残土処分費
■設計図書作成料
 仕様書・意匠図・構造図等の作成費であり工事契約前に別途発生する費用
■建築確認申請料
行政に対して建築物の審査を受けるための申請費用
建築確認申請料・中間検査申請料・完了検査申請料等
■住宅性能表示制度
設計性能評価・建設性能評価・長期優良住宅認定を取得される場合の
申請業務費用・申請手数料
■フラット35適合証明
フラット35を受ける場合は審査手続きを受けるための費用
■各種保険
火災保険・地震保険・住宅瑕疵担保責任保険
■市街化調整区域での申請料
■境界杭・測量等
■建物滅失登記申請料
■建物表示登記申請料
■建物保存登記申請料
■借入事務手数料
■抵当権設定登記費用
■生保団信特約料(団体信用生命保険特約制度)
■借入保証料
■完成保証料(完成保証登録料)
■地鎮祭・上棟式・引越し費用
■その他

この工務店 / 設計事務所の
詳細・お問合わせはこちら

360度バーチャルビュー

  • 伝統木造住宅

    古き良き伝統工法を生かした木の家。
    三角屋根に白い壁がおしゃれな外観。
    自然の中に調和する、温もり溢れる優しい住まいです。

  • 暮らしやすい間取り

    吹き抜けの高窓から光が降り注ぐ、開放的な空間。
    平屋感覚で暮らせるコンパクトな間取りに、スムーズな家事動線とたっぷりの収納。
    日々の暮らしへの配慮が行き届いた、快適な住まいです。

  • 過ごしやすい室内環境

    自然界と同じ遠赤外線の輻射(放射)効果を利用した無風・無音の冷暖房システム。
    風なし・音なし・ホコリなしで、一年中快適な室内環境を保ちます。

  • 吹き抜けの2階フロア

    勾配天井と吹き抜けが開放的な2階フロア。
    ガラス張りの吹き抜けが光を通し、1階のリビングに光を届けます。

  • 洗面脱衣室

    自然光を取り入れた、広々とした洗面脱衣室。
    外のウッドデッキとも直接繋がり、洗濯物もスムーズに運ぶことができます。

  • 外観

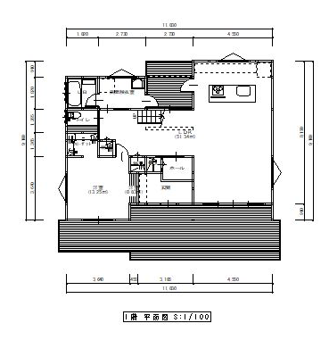
  • 1F

  • 2F

工事請負価格 (標準仕様 税込)

¥33,000,000(更新: 更新2026年1月)

坪単価:¥818,859(申請施工延床面積)

床面積

  • 1階 床面積
    88.60 ㎡
  • 2階 床面積
    29.81 ㎡
  • 延床面積
    118.41 ㎡(35.9坪)

施工面積

  • 1階 施工面積
    132.90 ㎡
  • 施工延床面積
    132.90 ㎡(40.3坪)

仕様

  • 工法
    木造
  • 耐震等級
    3等級
  • 断熱等級
    6等級
  • 主要構造材
    ヒノキ
  • 保証制度
    10年
  • 断熱仕様
    屋根断熱 壁充填断熱 床断熱
  • 通気仕様
    外壁通気工法
  • 換気仕様
    3種換気
  • 基礎
    ベタ基礎
  • 外壁
    サイディング
  • 屋根
    平板瓦
  • サッシ
    YKKAP APW
  • 玄関ドア
    YKKAP コンコード
  • 室内ドア
    ウッドワン ドレタス
  • 室内床
    ウッドワン コンビットグラードプラス
  • 階段
    ウッドワン デザイン階段
  • キッチン
    クリナップ ステディア
  • 浴室
    クリナップ ユアシス
  • 洗面室
    ウッドワン
  • トイレ
    TOTO

※『表示請負金額』 に対する仕様において、上記記載項以外の項目については直接お問い合わせください。

※『表示請負金額』に含まれないもの及び価格変動に影響するものについてはコチラをご確認ください。

この工務店 / 設計事務所の詳細は下記リンクよりご覧いただけます。