YSHOME_セミオーダー住宅
セミオーダー住宅
優れた断熱性能と高い耐震性能を兼ね備えた、建築デザイナーが設計する規格型デザイン住宅、HiLの規格住宅はコンセプトも様々。
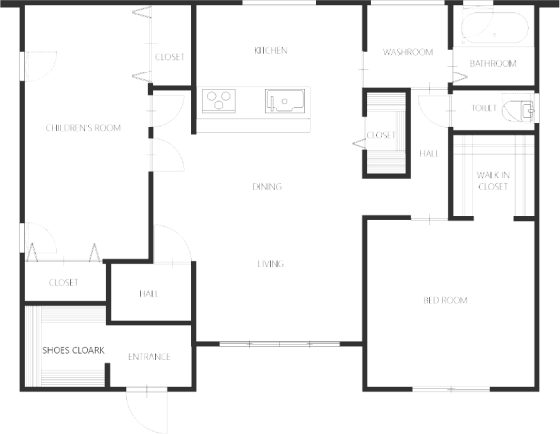
1.カフェ暮らしの平屋
コンパクトで経済的、内と外がつながり自然を感じられる。
地に足が付いて安心、階段がなくて動きやすい。
そんなメリットが多い平屋で、カフェ暮らしを楽しんだり、テラスでのんびりスローライフを楽しんだり、
まさに今の時代が求めた新しい暮らしのカタチです。

PLAN・・・1F床面積 92.76㎡(28.06坪)/延床面積 92.76㎡(28.06坪)/築面積 104.52㎡(31.62坪)
●家族の距離が近い
【自然と人が集まる】
外に開かれた家なので、自然と人が集まりやすくなります。週末はBBQやホームパーティを開いて楽しく過ごせます。
●平屋は地震に強い
2階建て以上と比べて、平屋は建物の重心が低く保たれるので地震に強い。建物の揺れは、地面から離れていればいるほど、振り子のように強くなる傾向があり、
平屋には高さがないため、地震による揺れの負担が小さくなるのです。また、建物の総重量も2階建て以上と比べて軽いため、地盤への負荷も小さくて済みます。
●カフェより落ち着く空間
【のんびりした暮らし】
自然とつながりながら、のんびりとした暮らしを実現します。 LDKからテラスに自然とつながるそんな生活空間が生活に楽しみをプラスします。

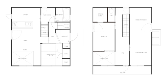
2.アウトドアハウス
楽しく気軽に家族と暮らしたい。週末は家でお気に入りのアイテムで
アウトドアライフ三昧。それができる大きなガレージ収納があればいい。
そんなボクらの普通が叶うアジトみたいな家に住みたい。


PLAN・・・1F床面積 56.31㎡(17.03坪)/2F床面積 52.99㎡(16.03坪)/延床面積 109.30㎡(33.06坪)/建築面積 66.24㎡(20.04坪)
●ボクらのための家に住もう。
敷地全てを使って暮らす家。それをサポートするのがこの家のボディー。
普段遣いのできる屋根付きデッキテラス。物干しだけでなく、BBQやのんびり暮らすために使える本来の家づくり
●家族や気の合う仲間や自分と向き合う空間
【家育は庭で。モンテッソーリ教育】
アウトドアは絶好の教育の場だと思う。本来生きる術を教えてくれる。みんなで協力して食事の準備をするので、コミニュケーション能力も身につく。
五感を駆使した感性、判断力、解決力、決断力など人間力を育てるアウトドアが必要。それをモンテッソーリ教育というらしい。
●週末は家でお気に入りのアイテムでアウトドアライフ三昧。
大きなガレージ収納があって、週末は家でお気に入りのアイテムで アウトドアライフ三昧♪ 楽しく気軽に家族と暮らせる家。

3.ひだまりの家
床下エアコン暖房標準装備。冬の快適さは足元から提供されます。
冷房計画に関しては、松尾設計室のノウハウが詰まった小屋裏エアコン冷房を装備したプラン(#12M2)と
小屋裏なしの天井断熱においても小屋裏エアコン冷房に
近い効果を発揮できるプラン(#12M)の2つのバリエーションをご用意。
松尾設計室の企画住宅第1弾。

PLAN・・・1F床面積 52.99㎡(16.03坪)/2F床面積 48.02㎡(14.53坪)/延床面積 101.01㎡(30.54坪)/建築面積 53.92㎡(16.31坪)
●小屋裏冷房と床下エアコン暖房
小屋裏にエアコン1台を設置し、小屋裏を冷やしその冷気をファンの力を使って各居室に配ります。小屋裏エアコン冷房は冷房費を安く抑えるのは非常に簡単ですが、技術的には非常に難解です。なぜなら2階は1階とは異なり各部屋が個室に分かれています。この状況でムラなく効かせるためには見るだけでは分からない地味な設計上の工夫の積み重ねが必要で、このモデルは、きちんと実現されています。
床下エアコン暖房の特徴は、床が暖かくなるということ。いくら高断熱高気密住宅を建てても、壁掛けエアコンで暖房しているとどうしても足元は寒さが残りがちです。家全体を温めて暖房費がいくらで抑えられるかは、断熱性、気密性、日射取得、そして何より難しいのが適切なエアコン能力の選定と運転方法です。
●高い断熱性能と耐震性、利便性も兼ね備えた住まいを
・国内トップレベルの断熱性能HEAT20 G2
・耐震性、許容応力度計算による耐震等級3
・未来パネル専用高性能トリプルガラス樹脂窓を標準装備しています

4.ふつうの家
家づくりではなく、くらしづくり。ステータスではなく、幸福と健康。
構造、断熱、空調、デザイン、コスト、土地のこと…
家づくりの勉強を通して、時間はいくらあっても足りない気がしてしまいます。
ですが、HiLの企画住宅は、しっかりとした「箱=スペック」が担保されています。
「ふつう」の家で、箱ではなく、「中身=家族のくらし」を考える時間を、 増やしてほしいと思います。

PLAN・・・1F床面積 52.99㎡(16.03坪)/2F床面積 52.99㎡(16.03坪)/延床面積 105.98㎡(32.05坪)
●「ふつう」は水まわりって、1階だよね?
2階に計画することで家族が過ごす1階のLDKと収納に余裕ができました。
●「ふつう」 はバルコニーがついてるよね?
以外と使わないバルコニーをなくし、コストダウンしました。
●「ふつう」 は間取りって一生変わらないよね?
家族の成長やライフスタイルの変化に合わせて間取りを変えられます。※別途リフォーム対応になります。

5.南風スマートハウス
少子高齢化が進む現代、家族の形も変わり続けています。同時に、生活費やエネルギーコストの上昇も見逃せません。
そんな今、住まいに求められるのは「コンパクトで機能的」そして「経済的に優れた」家です。
そこで誕生したのが、「南風スマートハウス」。
松尾設計室が培ったノウハウを凝縮し、2人から3人の家族が快適に暮らせるよう設計された平屋の規格住宅です。

PLAN・・・1F床面積 67.90㎡(20.54坪)/延床面積 67.90㎡(20.54坪)/建築面積 67.90㎡(20.54坪)
●トータルコストを最小限に
コンパクトな平屋にすることで建築費用を抑え、高断熱・高気密住宅なので暖冷房費も抑え、さらに太陽光発電により年間の光熱費は大幅に減り、住まいに関わるトータルコストを最小限にとどめ、いつまでも経済的に安心な生活を送ることができます。
・快適でさらに経済的に
冬は床下エアコンで床全面がほんわり暖かく、小屋根裏エアコンで部屋全体が涼しくなる設計で、年間の暖冷房費用は非常に少なく抑えられます。
・太陽光発電で光熱費も非常にお得
年間の光熱費は、太陽光を導入しない場合に比べて9万円近く安くなり、年間で7万6千円程度(月平均6,300円程度)となり、経済的にも非常に安心です。
●いつまでも安心して暮らせる平屋住宅
コンパクトにすることで将来こどもが巣立っても無駄な部屋が出ることもなく、また平屋なので老後を迎えても体への負担もなく心地よく過ごすことができると思います。
建物は高断熱・高気密の仕様とすることで暖冷房費用も非常に少なくすみ、太陽光発電を設置しているので年間の光熱費のランニングコストを大幅に抑えることができます。建築コストも抑え、住まいに関わるトータルコストを最小限に抑えます。
将来長きにわたり快適で健康的、かつ経済的に不安のない生活を送ることできる住まい、それが「南国スマートハウス」です。
●機能的な家事動線
洗面脱衣室、キッチン、納戸とつながりを持たせることで、家事を行う際の移動距離が最小限になるように設計されています。また、玄関から直接水廻り に行けるようにすることで、作業で汚れていてもリビングなどを汚す心配もありません。更に、回遊動線なので、家族の間で渋滞することもなく、コンパクトでありながらも、ゆったりとした生活を送ることができます。

Model
商品バリエーション
この工務店 / 設計事務所の詳細は下記リンクよりご覧いただけます。