fbpx

株式会社池芳工務店

工事請負価格 (標準仕様 税込)

¥-- 坪単価 ¥-- (施工延床)

延床面積 162.72㎡(49.3坪)  施工延床面積 178.04㎡(54坪)

※地域・建築条件によって価格が異なることがあります。
※掲載動画はCGのため実物と異なることがあります。

その他発生する可能性のある費用についてはこちら
『下記、表示価格からの変更等に伴う工事請負価格の変動について』
■耐火仕様・地域別仕様
建築地における法令基準や地域の気候に合わせた住宅性能仕様変更により
工事費が変動する場合があります。
防火耐火基準に仕様変更・寒冷地積雪による仕様変更
耐震性能・断熱性能・換気性能等による仕様変更
■特殊地域による費用の変動
 離島運搬費・遠方運搬費・狭小地小運搬費・高所運搬費・等による費用変動
■仮設工事
本体基本価格に含まれています(特殊ケースを除く)
■足場工事
本体基本価格に含まれています(特殊ケースを除く)

『下記、表示価格に含まれない費用となります』
■内装装飾工事
 カーテン・ペンダントライト・家具・雑貨・装飾品等
■エクステリア工事
 車庫・カーポート・門扉・外柵・敷石・等のエクステリアの工事費用
■ライフラインに関する費用
上下水道引込・電気引込工事・都市ガス引込工事・浄化槽設置工事費用
■不動産購入費
 不動産購入費・不動産取得税・印紙代
■土地、敷地関する費用
地盤調査費・地盤改良費・擁壁工事費・地盤保証費
(既存建物がある場合)建物調査費用・解体工事費・残土処分費
■設計図書作成料
 仕様書・意匠図・構造図等の作成費であり工事契約前に別途発生する費用
■建築確認申請料
行政に対して建築物の審査を受けるための申請費用
建築確認申請料・中間検査申請料・完了検査申請料等
■住宅性能表示制度
設計性能評価・建設性能評価・長期優良住宅認定を取得される場合の
申請業務費用・申請手数料
■フラット35適合証明
フラット35を受ける場合は審査手続きを受けるための費用
■各種保険
火災保険・地震保険・住宅瑕疵担保責任保険
■市街化調整区域での申請料
■境界杭・測量等
■建物滅失登記申請料
■建物表示登記申請料
■建物保存登記申請料
■借入事務手数料
■抵当権設定登記費用
■生保団信特約料(団体信用生命保険特約制度)
■借入保証料
■完成保証料(完成保証登録料)
■地鎮祭・上棟式・引越し費用
■その他

この工務店 / 設計事務所の
詳細・お問合わせはこちら

  • 重厚感あふれる煉瓦積みの住まい

    周囲の自然と美しく調和しながら、存在感を放つ煉瓦積みの外観。
    年月を重ねるごとに味わいを深め、経年変化を豊かに愉しめます。
    重厚感の中に優しさを感じる、品格ある佇まいです。

  • 家族がつながる、心地よいリビング

    大きな吹き抜けがもたらす開放感と、無垢材の階段が印象的なリビング。
    どこにいても家族の気配を感じられる、心地よい空間です。

  • 団らんの時間が流れるダイニングキッチン

    木の質感あふれる空間に、グリーンのアクセントが映えるダイニングキッチン。
    食卓を囲み、団らんのひとときが穏やかに流れます。

  • 趣を感じる落ち着いた和の空間

    柔らかな光が障子越しに差し込む、落ち着いた和室。
    昔ながらの趣を残しつつ、現代のライフスタイルに溶け込む洗練された空間です。

  • 温もりに包まれる上質な寝室

    木目天井と間接照明が織りなす、温もりのあるベッドルーム。
    一日の疲れを癒す、上質なプライベート空間が広がります。

  • 外観

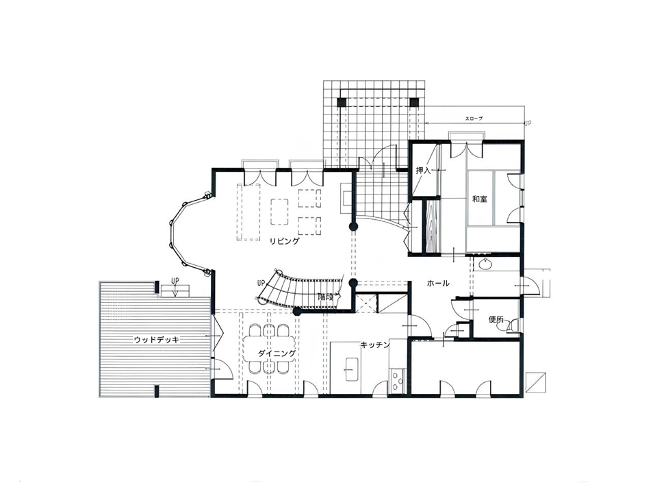
  • 1F平面図

  • 2F平面図

工事請負価格 (標準仕様 税込)

¥--(更新: )

坪単価:¥--(申請施工延床面積)

床面積

  • 1F床面積
    94.72 ㎡
  • 2F床面積
    68.00 ㎡
  • 延床面積
    162.72 ㎡(49.3坪)

施工面積

  • 施工延床面積
    178.04 ㎡(54坪)

仕様

  • 工法
    在来軸組木造
  • 耐震等級
    1等級
  • 断熱等級
    1等級
  • 主要構造材
    土台:ヒノキ  柱:杉
  • 断熱仕様
    屋根断熱
  • 通気仕様
    外遮熱・二重通気
  • 換気仕様
    1種換気
  • 基礎
    ベタ基礎 
  • 外壁
    煉瓦積み
  • 屋根
    三州瓦葺き
  • サッシ
    アルミクラッドサッシ
  • 玄関ドア
    断熱玄関ドア
  • 室内ドア
    タモ無垢材
  • 室内床
    ナラ無垢フローリング
  • キッチン
    造作
  • 浴室
    TOTO サザナ
  • 洗面室
    造作
  • トイレ
    TOTO ネオレスト

※『表示請負金額』 に対する仕様において、上記記載項以外の項目については直接お問い合わせください。

※『表示請負金額』に含まれないもの及び価格変動に影響するものについてはコチラをご確認ください。

この工務店 / 設計事務所の詳細は下記リンクよりご覧いただけます。